WOHNEN AM PARK - HAUS 1

Mehrfamilienhaus mit 8 Eigentumswohnungen und Tiefgarage | Parkstraße 17 in 87439 Kempten

Ihr neues Zuhause!

87439 Kempten, Parkstraße 17 - Haus 1

Unsere exklusiven Immobilienangebote bieten Ihnen erstklassigen Komfort und modernes Wohnen. Profitieren Sie von erstklassigem Service und finden Sie jetzt Ihre Traumimmobilie – Ihr neues Zuhause erwartet Sie bereits!

Haus 1

Ansicht Osten
Ansicht Westen
Ansicht Norden
Ansicht Süden

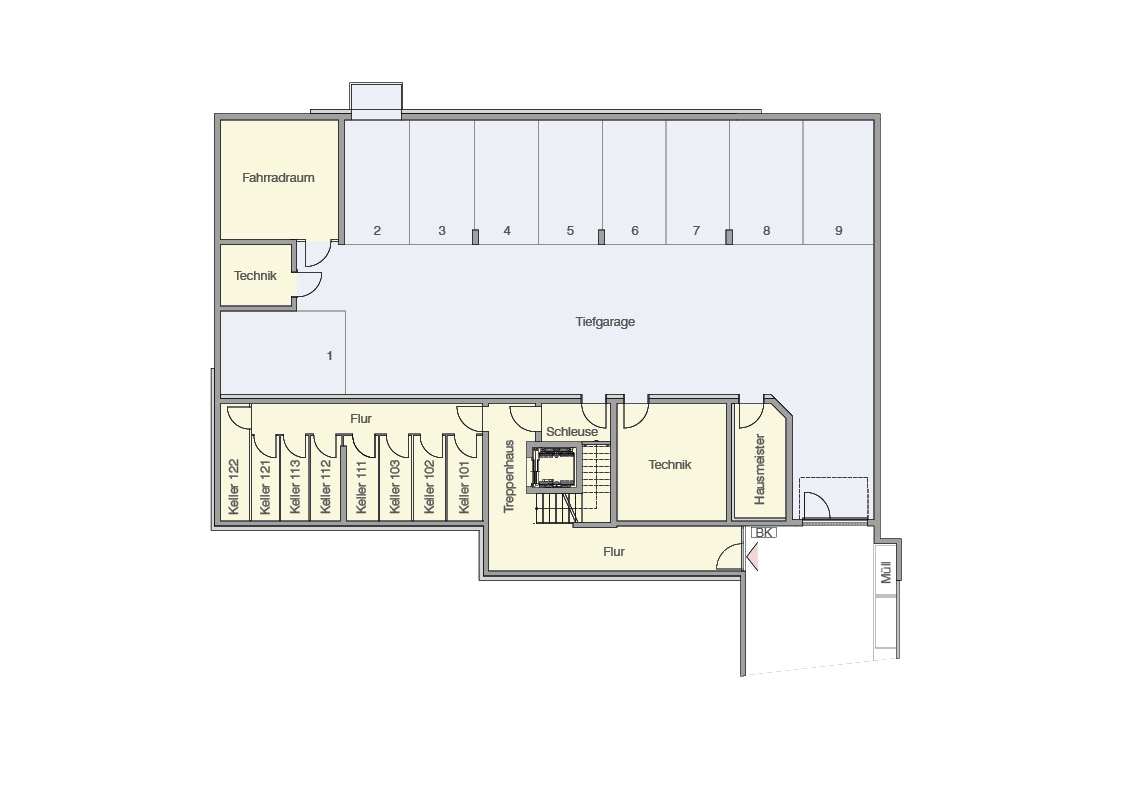
Kellergeschoss

Erdgeschoss

WOHNUNGETAGEWOHNFLÄCHE ca.ZIMMERKAUFPREISTiefgarage
101Erdgeschoss51,43 m²2- ZimmerVerkauftVerkauft
102Erdgeschoss92,49 m²3- Zimmer643.000 €28.000 €
103Erdgeschoss84,86 m²3- Zimmer589.000 €28.000 €

Wohnung 101 - Verkauft

Zimmer: 2

Wohnfläche: 51,43 m²

Kaufpreis: -

Tiefgarage: -


Wohnung 102

Zimmer: 3

Wohnfläche: 92,49 m²

Kaufpreis: 643.000 €

Tiefgarage: 28.000 €


Wohnung 103

Zimmer: 3

Wohnfläche: 84,86 m²

Kaufpreis: 589.000 €

Tiefgarage: 28.000 €


Obergeschoss

WOHNUNGETAGEWOHNFLÄCHE ca.ZIMMERKAUFPREISTIEFGARAGE
111Obergeschoss55,52 m²2- Zimmer422.000 €28.000 €
112Obergeschoss97,41 m²3- Zimmer729.000 €28.000 €
113Obergeschoss92,71 m²3- Zimmer694.000 €28.000 €

Wohnung 111

Zimmer: 2

Wohnfläche: 55,52 m²

Kaufpreis: 422.000 €

Tiefgarage: 28.000 €


Wohnung 112

Zimmer: 3

Wohnfläche: 97,41 m²

Kaufpreis: 729.000 €

Tiefgarage: 28.000 €


Wohnung 113

Zimmer: 3

Wohnfläche: 92,71 m²

Kaufpreis: 694.000 €

Tiefgarage: 28.000 €


Dachgeschoss

WOHNUNGETAGEWOHNFLÄCHE ca.ZIMMERKAUFPREISTIEFGARAGE
121Dachgeschoss106,05 m²3- Zimmer843.000 €28.000 €
122Dachgeschoss101,46 m²3- Zimmer806.000 €28.000 €

Wohnung 121

Zimmer: 3

Wohnfläche: 106,05 m²

Kaufpreis: 843.000 €

Tiefgarage: 28.000 €


Wohnung 122

Zimmer: 3

Wohnfläche: 101,46 m²

Kaufpreis: 806.000 €

Tiefgarage: 28.000 €


Kontakt  Impressum   Datenschutz Hinweisgeberschutzportal
© 2025 Hubert Schmid Bauunternehmen GmbH