WOHNEN IN LENZFRIED
HAUS 16

4 Doppelhaushälften | 87437 Kempten-Lenzfried, Anna-Straubin-Straße

Ihr neues Zuhause!

4 Doppelhaushälften | 87437 Kempten-Lenzfried, Anna-Straubin-Straße

Unsere exklusiven Immobilienangebote bieten Ihnen erstklassigen Komfort und modernes Wohnen. Profitieren Sie von erstklassigem Service und finden Sie jetzt Ihre Traumimmobilie – Ihre neue Heimat erwartet Sie bereits!

Haus 16

Ansicht Südwesten
Ansicht Südosten
Ansicht Nordwesten

Haus 16

Grundstücksfläche ca.: 365,00 m²
Wohnfläche: EG/OG/DG 139,50 m²
Nutzfläche KG ca.: 49,00 m²

ENERGIEAUSWEIS:
GEG: EA-B, XXX kWh (m2•a), EEK A+, Strom (Energieausweis in Arbeit)

PREIS:

Haus 16: 1.035.000,00 €
Garage: 16.500,00 €

Kellergeschoss

Flur ca. 5,33 m²
Keller ca. 25,65 m²
Technik ca. 7,30 m²
Waschen ca. 10,84 m²
GESAMT ca. 49,12 m²

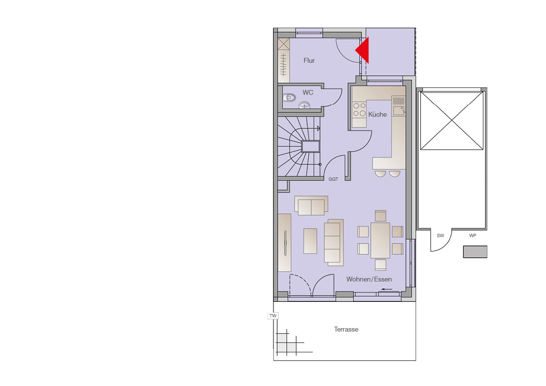
Erdgeschoss

Wohnen / Essen 25,46 m²
Kochen 9,17 m²
Flur 10,90 m²
WC 1,58 m²
Terrasse (50 %) 7,85 m²
GESAMT 54,96 m²

Obergeschoss

Bad 7,28 m²
Flur 2,89 m²
Schlafen 22,43 m²
Zimmer 1 16,77 m²
GESAMT 49,37 m²



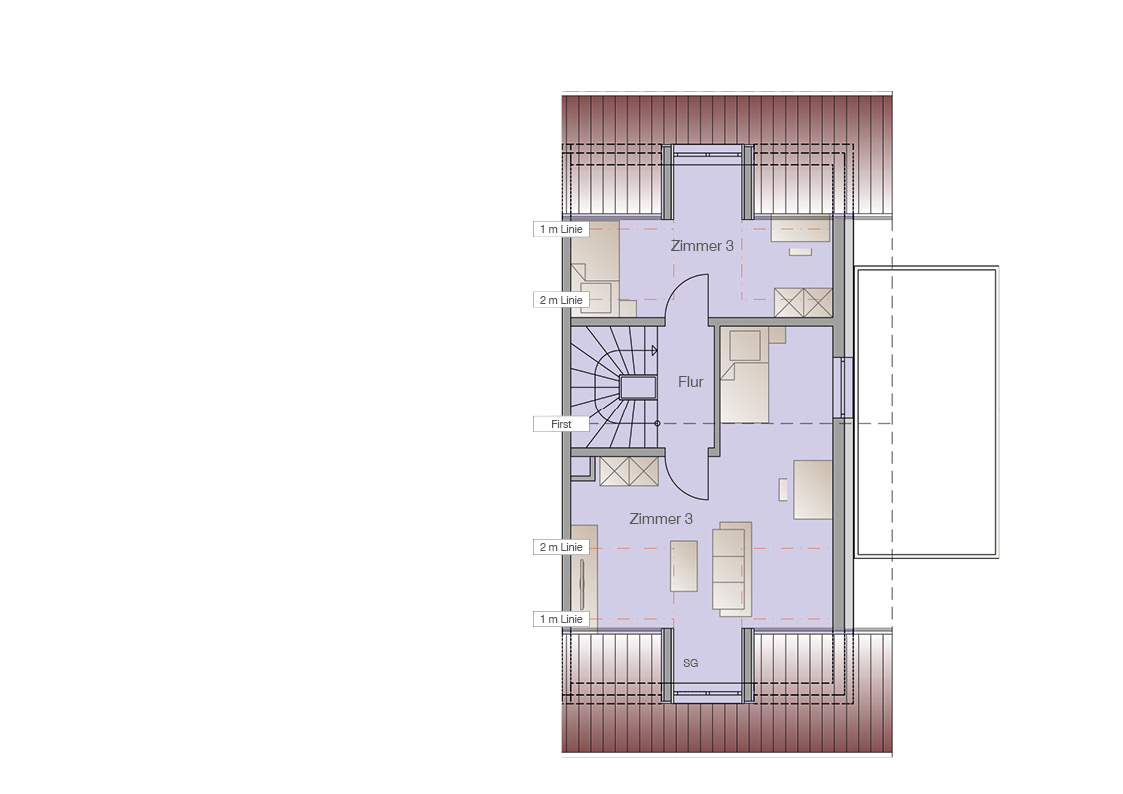
Dachgeschoss

Flur 2,89 m²
Zimmer 1 9,15 m²
Zimmer 2 23,14 m²
GESAMT 35,18 m²



Kontakt  Impressum   Datenschutz Hinweisgeberschutzportal
© 2025 Hubert Schmid Bauunternehmen GmbH